Community Recreation Center

COMMUNITY CENTER

CALIFORNIA, US

2025

COMMUNITY CENTER

CALIFORNIA, US

2025

Community Center

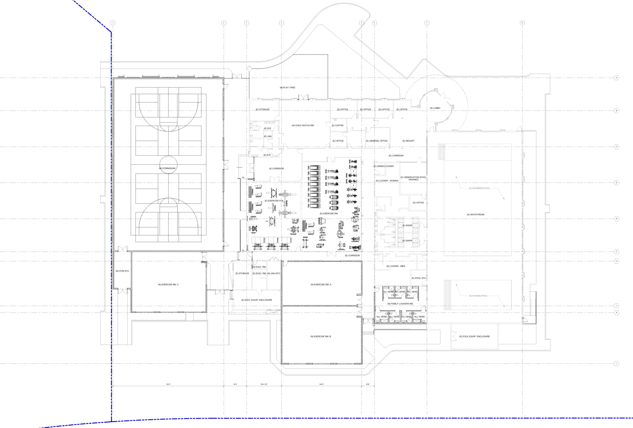
A comprehensive renovation and expansion of a community center revitalizes the original building and incorporates modern indoor sports areas and multipurpose classrooms. The project includes key structural improvements, the construction of a new swimming pool, and the modernization of existing facilities to enhance their social value and functionality.

PROCESS

C2A led the BIM modeling process using existing technical documentation, validating the conditions through photographic surveys and digital tools to resolve inconsistencies. We developed a coordinated model that accurately integrates the demolition, structural reinforcement, and new construction phases, ensuring the necessary technical consistency for municipal approval.

RESULTS

Our rigorous field validation and modeling process resulted in a final Revit file free of warnings and ready for implementation. The generation of accurate CAD drawings facilitated a smooth municipal submission process, ensuring that the design vision was faithfully translated into the construction.

SCOPE OF WORK

BIM MODELING
DOCUMENTATION DRAWINGS
ENGINEERING DRAWINGS

PROJECT INFO

TEAM 1 BA + 1 PM
DURATION 2 MONTHS
YEAR 2025
SQ. FT. 38.545
CURRENT STATUS UNDER CONSTRUCTION

Let's talk about your next project.