Multifamily Project

RESIDENTIAL – MULTIFAMILY

LA, CALIFORNIA, US

2025

RESIDENTIAL – MULTIFAMILY

LA, CALIFORNIA, US

2025

Multifamily Project

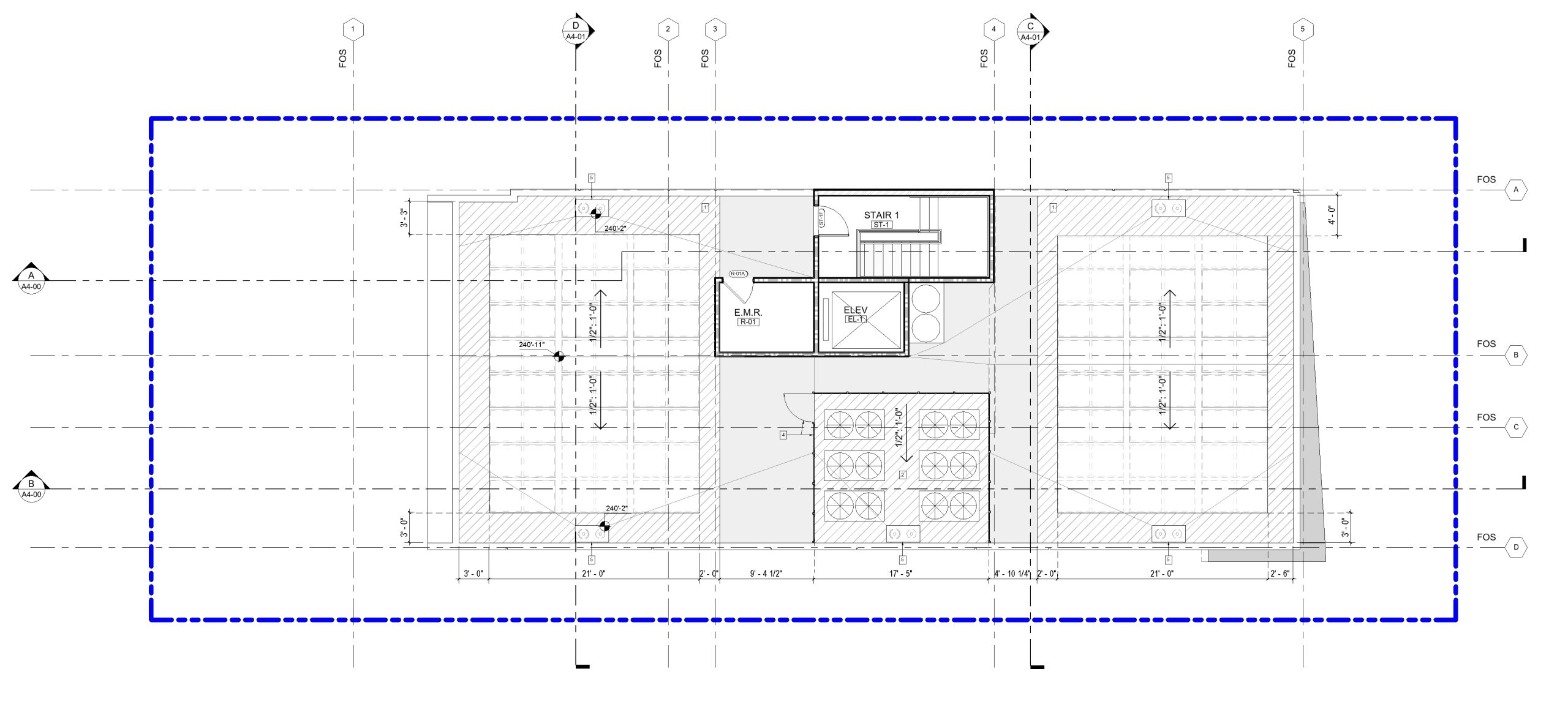
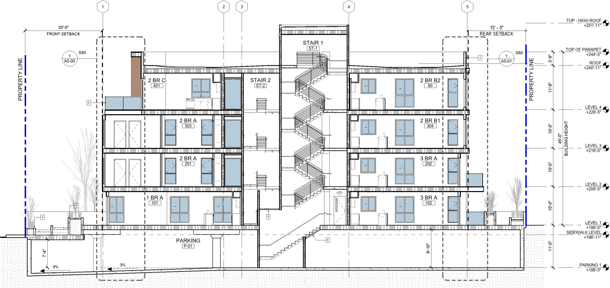
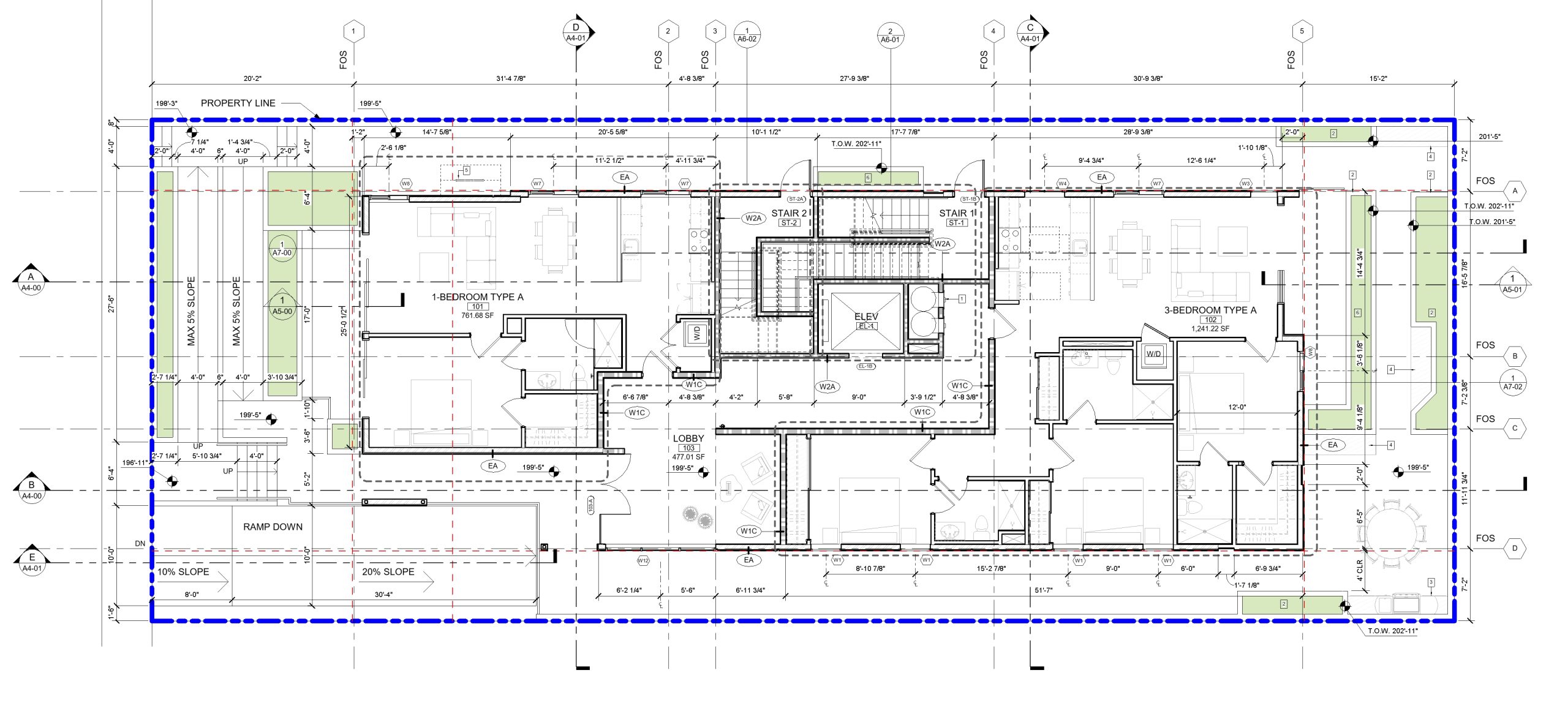
A 18473-square-foot project with 4-story multifamily residential building with underground parking, designed to provide efficient and functional housing through a compact and well-organized layout. The building includes multiple residential units distributed across four levels, with a configuration that maximizes space efficiency, natural light, and circulation.

The underground level is dedicated to parking and service areas, allowing the upper floors to prioritize residential use and improving the overall functionality of the building. The design focuses on repetition and modularity of units, creating a balanced façade and an efficient structural and architectural system suitable for urban residential development.

PROCESS

The project was developed following BIM criteria, optimizing the use of Revit through groups, standardized families, and smart schedules for quantity takeoffs and pricing.

The workflow was organized into weekly packages with progressive deadlines. Each phase included defined deliverables for progress and closure, along with client review and validation.

The main goal of the final stage was to deliver a fully documented DD/CD set and a clear, well-structured Revit model ready for coordination and construction.

RESULTS

Fully documented CD set and an optimized, warning-free Revit model ready for client handover.

SCOPE OF WORK

SD TO CD DRAWINGS
REVIT MODEL

PROJECT INFO

TEAM 2 BA + 1 PM
DURATION 2 MONTHS
YEAR 2025
SQ. FT. 18,473
CURRENT STATUS UNDER CONSTRUCTION

Let's talk about your next project.